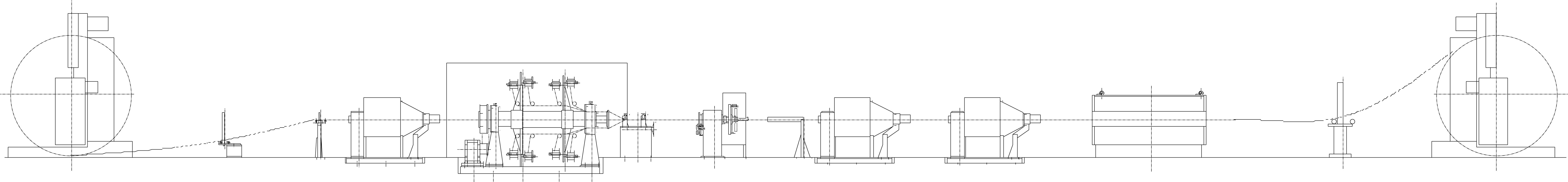
التطبيق
آلة تدريع أسلاك النحاس من النوع القرصي يتم تطبيقها لتدريع الكابلات مع أسلاك النحاس و أشرطة النحاس .
المميزات
1. حجم البكرة هو : Φ200-Φ400 ، عدد البكرات هو : 60-120
2. آلة التدريع لديها دعامات أمامية وخلفية . محورها الرئيسي هو عبارة عن قضيب بقطعة واحدة .
3. آلة تدريع الأسلاك تستخدم مرفاع مصنوع من طبق فولاذي سميك ويتميز بلحام أقل .
4. نهاية قصيب اللف مجهز بقفل ميكانيكي ، ليسمح بعملية مريحة .
التحسينات
1. آلة تدريعأسلاك النحاس من النوع القرصي تستخدم ثلاث محامل للدعم ، والتي قامت بتسريع سرعة الدوران مرة واحدة . إنها من دون إسطوانات سفلية .
2. لديها جهاز ميكانيكي لتزويد الشد . هذا الجهاز يضمن الشد المستقر .
3. قفص الآلة لديه حماية مزدوجة .
4. تم إضافة وحدة تسجيل شريط غير معدنية .800rpm
المتغيرات
| حجم البكرة (mm) | عدد البكرات | أقصى سرعة دوران لجسم التجديل أسلاك النحاس (rpm) | قطر حشية شريط النحاس (mm) | عرض الشريط (mm) | أقصى سرعة دوران لرأس التدريع (mm) |
| Ø315 | 72 | 60 | Ø600 | 20~60 | 606 |
| Ø315 | 80 | 50 | Ø600 | 20~60 | 606 |
| Ø400 | 72 | 50 | Ø600 | 20~60 | 606 |
| Ø400 | 80 | 40 | Ø600 | 20~60 | 606 |

